Projekt No 1305
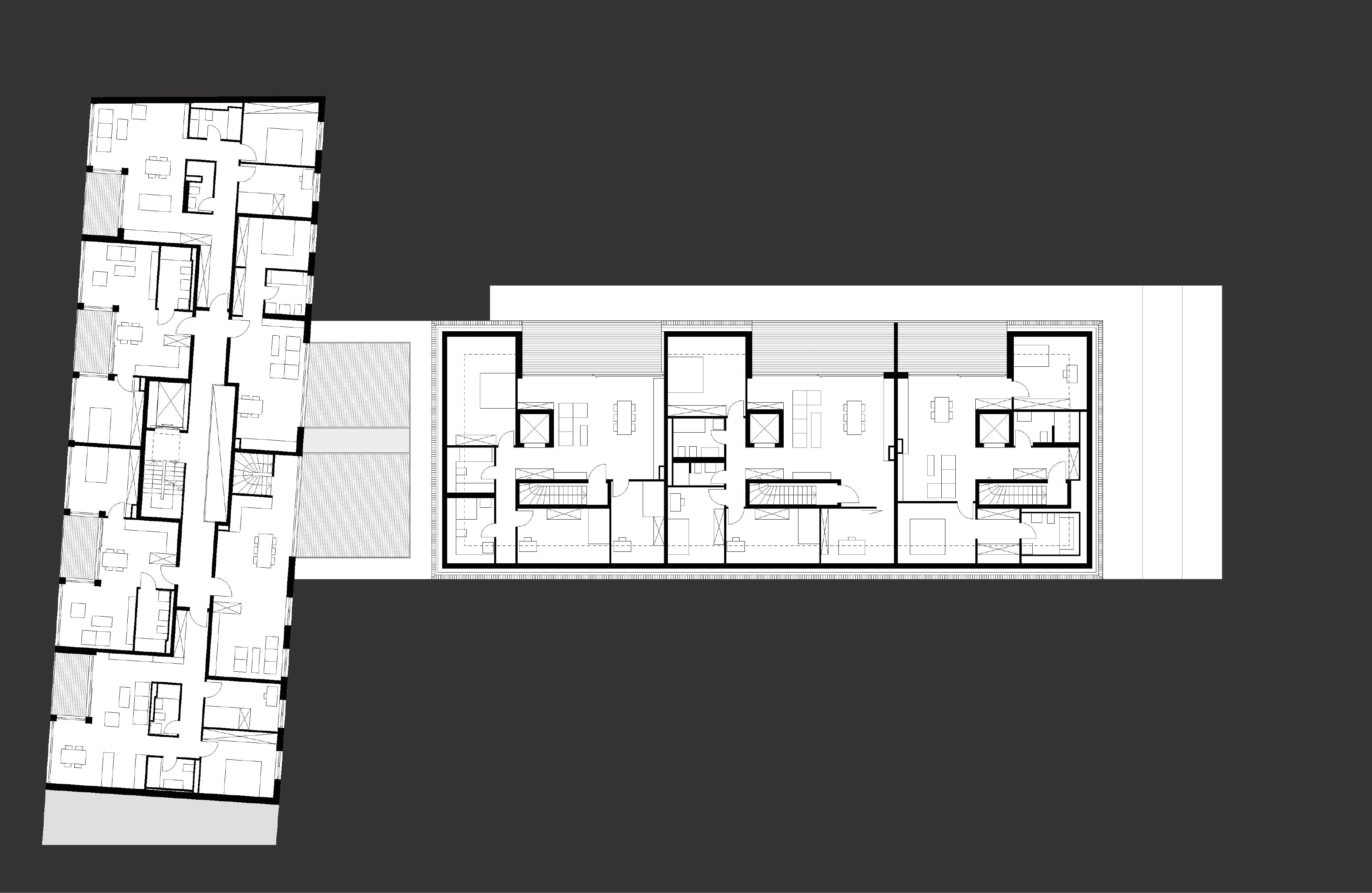
Neubau eines MFH mit 50 Wohneinheiten und einer TG mit 52 Stellplätzen
Wohnfläche: ca.5000m²
Bauzeit: 2015-2016
Leistungsphasen nach HOAI: 1-5
Bauherr: KAAN Projekte GmbH
Neubau eines MFH mit 50 Wohneinheiten und einer TG mit 52 Stellplätzen
Wohnfläche: ca.5000m²
Bauzeit: 2015-2016
Leistungsphasen nach HOAI: 1-5
Bauherr: KAAN Projekte GmbH